Das Projekt
Ein Jugendstil-Stadthaus von 1904 – liebevoll erhalten, ökologisch modernisiert und durchdacht neu strukturiert: dabei wurde gezeigt, wie ein Gebäude mit Charakter behutsam in die Gegenwart geführt wird. Die besondere Herausforderung: die Vielfalt an Bauteilen vom Keller bis zum Dach sowie der Wunsch, möglichst viel Originalsubstanz zu bewahren. In enger Zusammenarbeit mit Handwerker*innen entstand so ein Wohnhaus, das Geschichte erzählt und zugleich heutigen Wohnansprüchen gerecht wird.
Innovationen
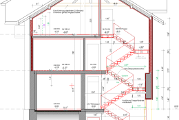
Die Sanierung mit modernen Lösungen - wie eine durchgängige Dampfbremse, Zellulosedämmung, Fußbodenheizung und elektrisch betriebene Holzrollläden - beeinträchtigt nicht den historischen Charakter des Stadthauses. Fassadendetails wurden originalgetreu ergänzt, antike Öfen reaktiviert und eine behutsame thermische Sanierung umgesetzt. Besonders sensibel: die Restaurierung historischer Elemente wie Türen, Täfer und Parkettböden – ausgebaut, nummeriert und am Originalplatz wiedereingesetzt. Die massive Eichentreppe wurde durch ein neue Eichentreppe ersetzt. Nachhaltigkeit und Erhalt standen dabei jederzeit im Fokus.
"Und eine ganz besondere Herausforderung war die durchgängige Verlegung einer Dampfbremse vom Obergeschoss bis zum Dach: Da musste jeder einzelne Deckenbalken separat und sorgfältig abgedichtet werden, " so Planer Manfred Bertsch.
Das Ergebnis
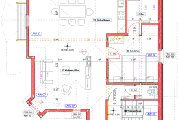
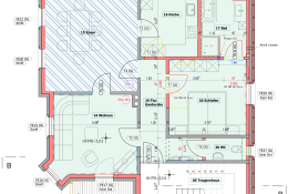
Heute präsentiert sich das Haus als stilvolles Wohngebäude mit zwei Wohneinheiten: Die Fassade zur Straße blieb in ihrer ursprünglichen Form erhalten. Sie wurde gereinigt, neu verputzt und im Rahmen eines eigens entwickelten Farbkonzepts farblich neu gefasst. Die nordseitige Fassade mit Eternitschiefer aus den 1950er- und 60er-Jahren verkleidet, wurde in diesem Zuge aufgewertet und dem Gesamtkonzept angepasst. Im Inneren sorgen historische Bauelemente kombiniert mit moderner Haustechnik für ein einzigartiges Wohngefühl. Die Raumaufteilung wurde fast vollständig erhalten, punktuell optimiert. So entstand ein lebendiger Ort mit Geschichte, Individualität und hohem Wohnkomfort.

































